Departamento Parque Forestal

Descripción

Amplitud, vista, ciudad… Tres conceptos muy presentes en este departamento del Parque Forestal, que está en venta. Se encuentra en un edificio de los años 50 diseñado por los arquitectos Ignacio Tagle, Carlos de Landa y Juan Echenique, quienes supieron crear departamentos con espacios generosos y nobles como este, que hoy, después de casi 70 años, mantiene su calidad, sobre todo tras de la actualización que se le realizó hace unos años.

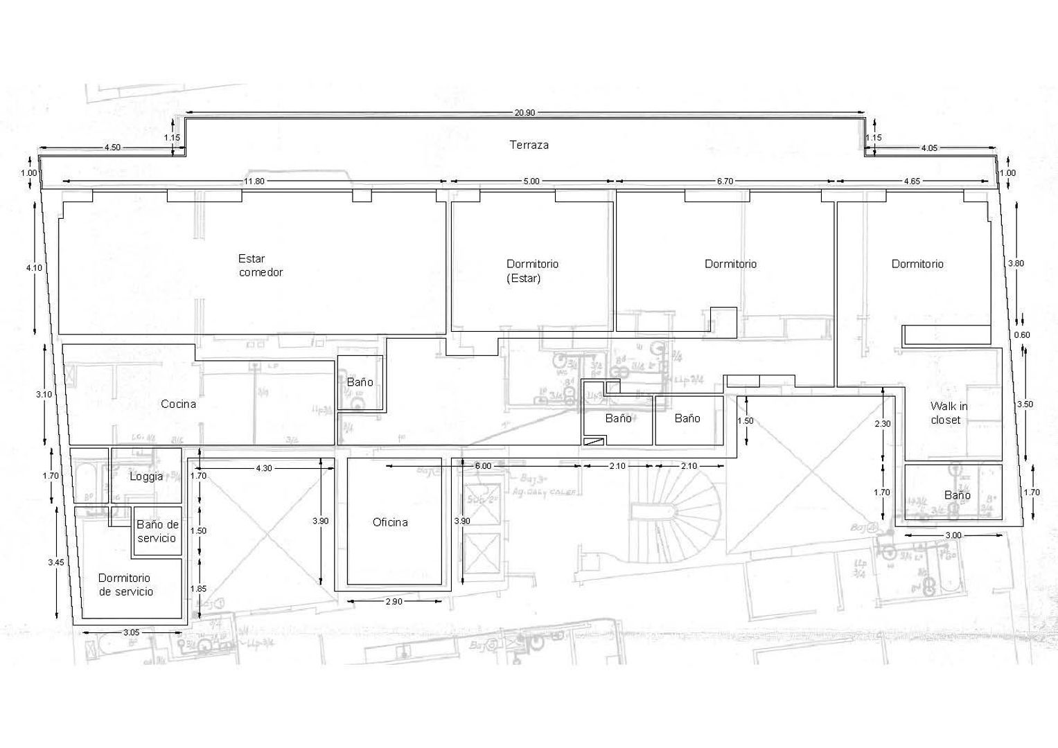
La luz natural entra a raudales, ya que los recintos principales –living, comedor y dormitorios– miran hacia el norte, con una terraza de 30 metros que los recorre de punta a cabo. Y que son como un palco privilegiado del séptimo piso sobre las copas de los árboles del Parque Forestal.

El ingreso ya tiene mucha prestancia, por el gran recibidor que actúa también como separador de las áreas públicas y privadas. Desde allí, por la izquierda se llega a un escritorio con librero empotrado, luego al baño de visitas y la cocina. Desde esta, a una logia cerrada, y finalmente a una pieza y baño de servicio.

La cocina se conecta visualmente con el comedor, que parece presidir el gran espacio donde también está el living. Este, al igual que el escritorio, cuenta con una estantería en obra. En la zona privada, dos enormes dormitorios disponen cada uno de un baño completo. Este sector remata en la habitación principal, que tiene a su haber un envidiable walk in closet y baño con ventilación natural. La calefacción es por radiadores.

3D – 3B – Hall – Living – Comedor – Cocina – Escritorio – Baño de visitas – Terraza – Pieza y baño de servicio – Logia – Estacionamiento – Bodega.

Superficie: 320 m².

UF 21.500.

Gastos comunes: $450.000
Contribuciones: $320.000.

Características

Detalles
Precio
21.500,00 UF
Contribuciones
320.000 CLP
Gastos comunes
450.000 CLP
Estado
Disponible
País
Chile
Región
Metropolitana
Comuna
Santiago
Dirección
Ismael Valdés Vergara
Ciudad
Santiago
Barrio
Parque Forestal
Ubicación
Parque cercano, Avenida transitada, En el centro de la ciudad, Sector residencial, Vista despejada, transporte público, autopistas, comercio
Mascotas
No permitido
Fumadores
No fumadores
Construcción
Tipo de propiedad
Departamento
Piso
7
Superficies
Superficie útil
320m²
Programa
Dormitorios
3
Baños
3
Instalaciones
ascensor
Áreas exteriores
Balcón
Norte
Energía
Agua caliente
caldera a gas del edificio
Calefacción
caldera a gas del edificio, radiadores
Estacionamiento
Estacionamiento
Subterráneo
Capacidad
1

Ubicación

Vista de la calle
Vista del mapa
5 min
10 min
15 min

Puntos de interés

Indica qué puntos de interés quieres mostrar en el mapa.

Calcula el tiempo de desplazamiento

Elige tu transporte
Tiempo máximo de desplazamiento
5 min
10 min
15 min
Deshabilitar resultados
Calcular el tiempo de viaje

Planos

Ismael Valdés Vergara, Santiago plattegrond-0

Solicitar visita

El formulario se ha enviado correctamente. Nos pondremos en contacto con usted lo antes posible.

Lamentablemente, no podemos determinar de forma concluyente si se trata de un humano o de un bot/spammer automatizado. Por lo tanto, no podemos enviar el formulario. Vuelva a intentarlo o póngase en contacto directamente con el agente inmobiliario por correo electrónico.

Algo ha ido mal al enviar el formulario de contacto.
Compruebe si ha rellenado correctamente todos los campos obligatorios y vuelva a intentarlo.

recaptcha
reCAPTCHA
PrivacyTerms
Merle Mandaat

Merle Mandaat

  ¿Quieres vender o arrendar tu propiedad?