Casa Alianza Francesa

Vendido

Descripción

Es luminosa, con un atractivo programa, muy funcional y lleno de detalles que la hacen una propiedad perfecta para vivir en familia. Se trata de una casa en venta, ubicada en Av. Vitacura con Luis Pasteur, en el barrio del colegio Alianza Francesa, en un pasaje cerrado con portón eléctrico. A la vuelta de la esquina hay comercio, restaurantes, centros médicos y servicios diversos, además de buena conectividad en auto y transporte público. También quedan cerca los colegios La Maisonnette y Bradford.

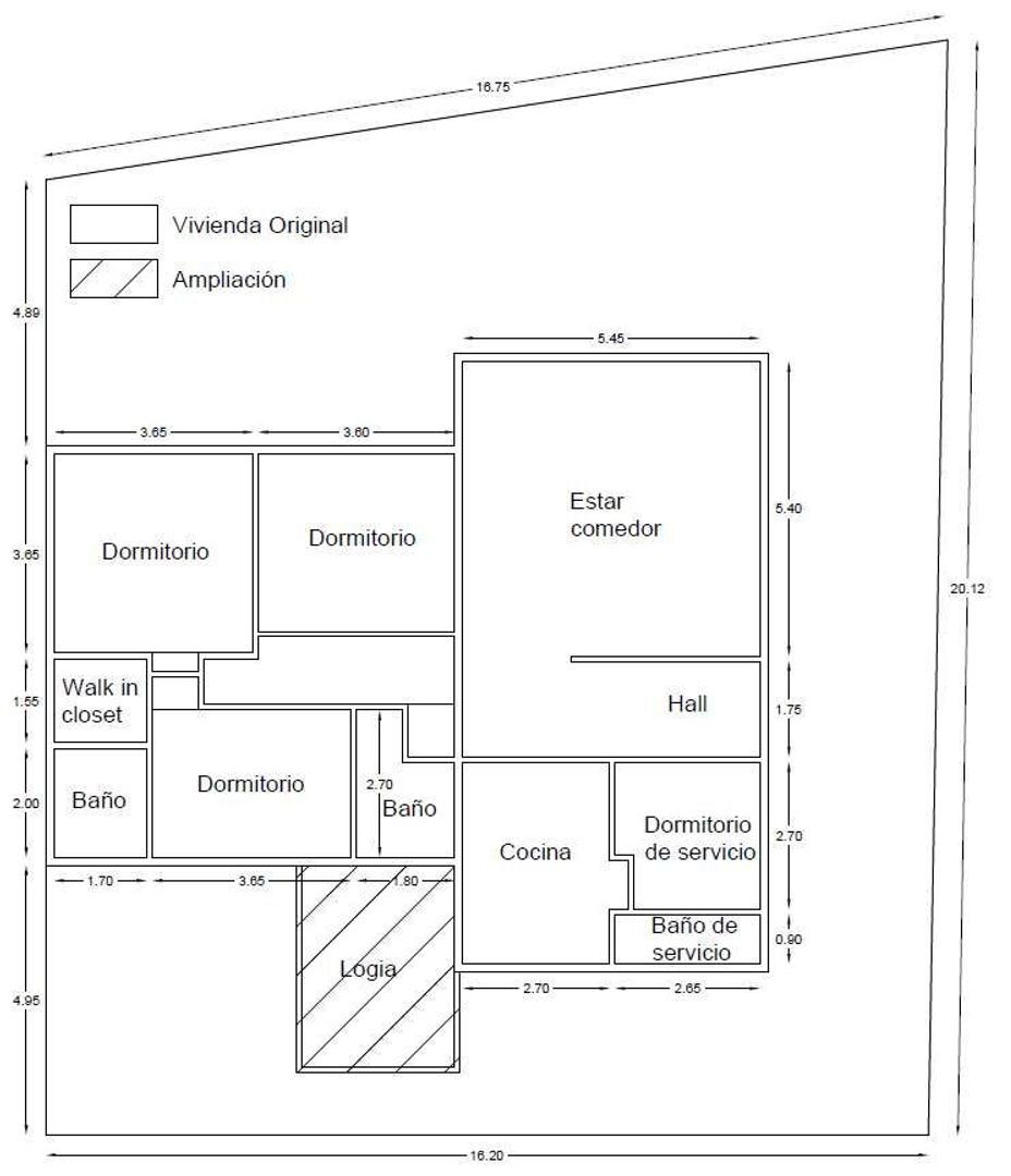
La casa es de un piso, y en 134,21 m² cuenta con un hall de acceso que conduce por una parte hacia la cocina, que está semiintegrada (equipada con mesón tipo comedor de diario, encimera a gas, horno eléctrico empotrado, campana y conexión para lavavajilla) y que se conecta con la pieza y baño de servicio, con una logia amplia que también funciona como bodega y un patio interior. A este también tiene salida uno de los tres dormitorios.

El living-comedor, en tanto, es un agradable espacio que recibe luz del norte y se abre a un patio con quincho, ideal para armar una terraza. Las otras dos habitaciones (la principal en suite, con walk in closet) tienen esa misma orientación y salida también al patio. En el pasillo se encuentra un baño completo, independiente. Los ventanales son de termopanel con marcos de aluminio.

4D – 3B (incluidos pieza y baño de servicio) – Hall – Living-comedor – Cocina – Bodega – Logia – Estacionamiento – Estacionamiento de visitas. 

Superficie construida: 134,21 m².
Superficie terreno: 308,06 m².

$419.316, aprox., cada cuota.
 

Características

Detalles
Comisión corretaje más IVA
2%
Contribuciones
419.316 CLP
Estado
Vendido
Entrega
Inmediata
País
Chile
Región
Metropolitana
Comuna
Vitacura
Dirección
Vitacura Int.
Ciudad
Santiago
Barrio
Jardín del Este / Alianza Francesa
Ubicación
Parque cercano, Avenida transitada, Sector residencial, Condominio, transporte público, autopistas, comercio
Mascotas
Se aceptan mascotas
Fumadores
Permitido
Construcción
Tipo de propiedad
Vivienda unifamiliar, casa aislada
Accesibilidad
acceso para adultos mayores, acceso para personas con necesidades especiales
Superficies
Superficie útil
134m²
Superficie terreno
308m²
Programa
Dormitorios
4
Baños
3
Número de pisos
1
Instalaciones
Logia, Bodega, Quincho
Áreas exteriores
Jardín
Patio, terraza
terraza
Nororiente
Estacionamiento
Estacionamiento
Tándem, De visitas
Capacidad
2

Ubicación

Vista de la calle
Vista del mapa
5 min
10 min
15 min

Puntos de interés

Indica qué puntos de interés quieres mostrar en el mapa.

Calcula el tiempo de desplazamiento

Elige tu transporte
Tiempo máximo de desplazamiento
5 min
10 min
15 min
Deshabilitar resultados
Calcular el tiempo de viaje

Planos

Vitacura Int., Santiago plattegrond-0
  ¿Quieres vender o arrendar tu propiedad?